R3_ wandpanele_02

MIT DER
RAUMQUALITÄT
GUT BERATEN

Raumakustik kann teuer werden.
Die gezielte Beratung durch raumqualität hilft Ihnen Fehlinvestitionen zu vermeiden.

Nutzungsanalysen und raumakustische Messungen bieten eine neutrale Grundlage für Ihre Entscheidung.

Wir beraten Sie gerne.

 

 

R3_ raumqualitaet_03

 

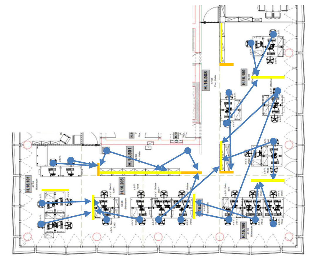
Vereinfachte Darstellung von Direktschallausbreitung

In vielen Fällen führen im open space Büro fehlende Maßnahmen zur Direktschall-Ausbreitung zu gravierenden Störungen. Wie in der Abbildung mit einfachen Pfeildarstellungen zu sehen ist, sind diese direkten Schallwege vielfach vorhanden.
R3_schall ohne

 

Auswirkung von Schallschirmen auf die direkten Schallwege

Mit der durchdachten Planung von Zonierungselementen als Schallschirme kann der direkte Schallweg eingeschränkt und dadurch die Störungen deutlich verringert werden. Je nach Nachhallzeit muss der Bedarf an mehr oder weniger zusätzlichen Absorptionsflächen ermittelt und mögliche Maßnahmen ergriffen werden.
R3_schall mit

 

R3_designelemente_11.jpg